Proyectos
Proyecto de línea de producción de llenado de salsa italiana (2024)
- Antecedentes: En 2024, diseñamos una línea llave en mano completa para un cliente italiano con el fin de aumentar su capacidad de envasado de salsas.
- Producto: Salsas
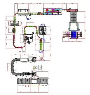
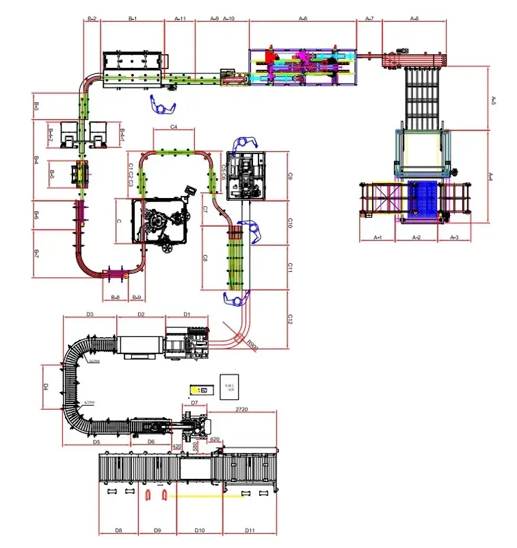
- Solución: Entregamos una línea totalmente automatizada que incluía un despaletizador, una enjuagadora de botellas, una llenadora por pistón, una taponadora de husillo, una etiquetadora de alta velocidad, una envolvedora retráctil y un sistema de empaquetado y paletizado de cajas.
- Resultados: Se logró un envasado de salsas automatizado, eficiente y estable de principio a fin. El proyecto mejoró significativamente la eficiencia del llenado y la calidad del envasado, cumpliendo con éxito los objetivos de aumento de capacidad del cliente.
Proyecto de llenado y sellado de tubos de crema de manos en Polonia (2024)
- Resumen: En 2024, proporcionamos una solución de llenado personalizada para la nueva línea de cremas de manos de un cliente polaco.
- Requisitos principales: Llenado de alta precisión con sellado hermético para garantizar un volumen uniforme, un sellado seguro y una estética de primera calidad.
- Tecnología principal: Tecnología de llenado y sellado ultrasónico de tubos. La vibración de alta frecuencia logra un sellado sin contacto a baja temperatura, evitando daños por calor a la crema o contaminación en la abertura del tubo.
- Características de diseño: Equipada con un sistema de llenado de pistón de alta precisión para un volumen de dosificación estable. La estación de sellado ultrasónico permite ajustes digitales para adaptarse a diversos materiales de tubo, garantizando un sellado limpio y seguro. La máquina presenta una estructura optimizada para una producción continua y de alta eficiencia.
- Resultados: La llenadora y selladora de tubos permitió el lanzamiento sin contratiempos del nuevo producto, mejorando la eficiencia y garantizando la calidad del producto y la uniformidad del empaque.
Proyecto de línea de envasado de productos químicos domésticos en EE. UU. (2025)
- Antecedentes: En 2025, modernizamos una línea de llenado de limpiadores de inodoros para un cliente estadounidense con el fin de mejorar la automatización y la eficiencia.
- Producto: Productos químicos para el hogar
- Necesidades principales: Llenado de alta precisión, taponado estable y monitoreo de calidad integral con trazabilidad.
- Solución: Integramos un sistema automático de clasificación de botellas, una llenadora de 12 cabezales (con diseño antigoteo), una taponadora de 4 ruedas (con control preciso del torque) y una etiquetadora de doble cara para lograr la automatización completa de la línea.
- Resultados: La velocidad de producción y la consistencia del llenado mejoraron significativamente. Se redujo el desperdicio de material y la dependencia de mano de obra, satisfaciendo plenamente las demandas del cliente en cuanto a eficiencia y calidad.
Proyecto de línea de llenado de líquido limpiaparabrisas en Lituania (2025)
- Antecedentes: En 2025, para hacer frente al crecimiento del mercado y solucionar los cuellos de botella en la capacidad, el cliente nos encargó la personalización de una nueva línea de producción.
- Producto: Líquido limpiaparabrisas para automóviles
- Necesidades principales: Aumento drástico de la capacidad con precisión de llenado garantizada, sellado fiable y etiquetado claro.
- Solución: Se personalizó una línea automatizada centrada en una llenadora de alta velocidad de 12 cabezales, integrada con taponado con seguimiento, sellado por inducción, codificación láser y etiquetado a doble cara.
- Resultados: La capacidad aumentó significativamente. La estabilidad de la calidad de llenado y envasado brindó un sólido respaldo a la expansión del mercado del cliente.
Proyecto de línea de llenado de aceites de Indonesia (2025)
- Antecedentes: Diseñada a medida para la nueva fábrica de un cliente indonesio, adaptada a sus necesidades específicas de capacidad y distribución del taller.
- Producto: Diversos aceites
- Requisitos principales: Llenado eficiente, sellado fiable, control automático de peso y sellado de cajas.
- Solución: Una línea de producción de envasado sincronizada que incluye una llenadora de 6 cabezales, un elevador de tapas, una taponadora de 4 ruedas, una selladora de papel de aluminio y una etiquetadora de doble cara.
- Resultados: La línea de llenado funcionó de forma estable, con un llenado preciso y un sellado fiable, lo que garantizó un lanzamiento de producción fluido y exitoso para la nueva planta del cliente.




